Bắc Ninh đang trở thành điểm sáng thu hút đầu tư nước ngoài, đặc biệt là từ các doanh nghiệp Hàn Quốc. Mới đây, Tập đoàn LH – một “ông lớn” trong lĩnh vực phát triển đô thị của Hàn Quốc – đã chính thức đề xuất xây dựng khu đô thị Đông Nam tại tỉnh Bắc Ninh với tổng vốn đầu tư dự kiến lên tới 19.780 tỷ đồng. Dự án này không chỉ mang quy mô lớn mà còn được kỳ vọng sẽ góp phần thay đổi diện mạo đô thị, nâng cao chất lượng sống cho người dân địa phương.

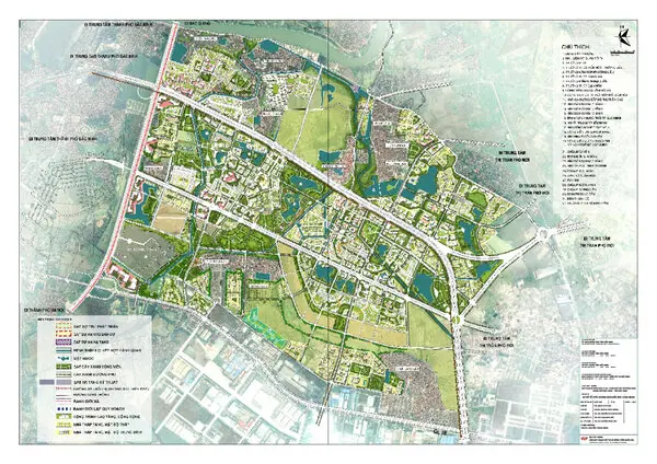
Khu đô thị Đông Nam sẽ được triển khai trên diện tích khoảng 240 ha, trải dài tại các phường Vũ Ninh, Phương Liễu và Nhân Hòa. Tập đoàn LH hiện đang tích cực khảo sát, xây dựng hồ sơ và đề nghị tỉnh Bắc Ninh chấp thuận chủ trương đầu tư. Tuy nhiên, tiến độ dự án hiện vẫn còn chậm so với kế hoạch đề ra, khiến doanh nghiệp mong muốn được chính quyền địa phương hỗ trợ, tháo gỡ vướng mắc để đẩy nhanh quá trình triển khai. Đại diện LH cho biết, với kinh nghiệm dày dặn trong việc xây dựng hàng chục nghìn căn hộ mỗi năm tại Hàn Quốc, tập đoàn cam kết mang đến một khu đô thị hiện đại, thông minh và bền vững cho Bắc Ninh.

Lãnh đạo tỉnh Bắc Ninh, đặc biệt là Chủ tịch UBND tỉnh Phạm Hoàng Sơn, đã bày tỏ sự tin tưởng vào tiềm lực và năng lực của Tập đoàn LH. Ông khẳng định, Bắc Ninh luôn chào đón các dự án đầu tư quy mô lớn, hiện đại và cam kết đồng hành, hỗ trợ tối đa để doanh nghiệp Hàn Quốc hoạt động hiệu quả, lâu dài trên địa bàn. Điều này không chỉ thúc đẩy phát triển kinh tế – xã hội mà còn góp phần vun đắp mối quan hệ hữu nghị giữa Việt Nam và Hàn Quốc ngày càng bền chặt.

Dự án khu đô thị Đông Nam nếu được triển khai thành công sẽ là bước ngoặt lớn trong quá trình đô thị hóa của Bắc Ninh. Với sự tham gia của một doanh nghiệp nhà nước uy tín đến từ Hàn Quốc, người dân Bắc Ninh có thể kỳ vọng vào một không gian sống chất lượng, hạ tầng đồng bộ và môi trường đô thị văn minh. Đây cũng là tín hiệu tích cực cho thấy Bắc Ninh đang ngày càng khẳng định vị thế là điểm đến hấp dẫn của các nhà đầu tư quốc tế, đặc biệt trong lĩnh vực bất động sản và hạ tầng đô thị.



